Logo Back to start

Building a Swimming Pool

The Record of an Achievement (1962-65)

A pamphlet originally printed for the Golden Jubilee of St Christopher School, Letchworth (1965)

Now reproduced here in virtual form (with the exception of the appendices).

(This version is contained on 12 pages, with photographs. There is a text only version, on a single page, for those who would like just to download the text.)

School Meeting

The story may fitly begin (though, as we shall see, the swimming pool project already had some years of history behind it) at a School Meeting early in the Autumn term 1961.

"Minutes of Meeting held Monday October 9th 1961. (5) In Freeman's Business, Mr King Harris informed the School of his plans concerning the building of their own swimming pool during the coming year. The School showed itself, by its loud applause, to be in full agreement with the project, and it was decided that preliminary operations should commence as soon as possible."

This was the Headmaster speaking to a meeting of his Senior School - some 280 boys and girls between the ages of twelve and eighteen - with a pupil Chairman and Secretary, not telling them to turn out and tackle a job, but asking them if they were prepared to do so. Though the technical direction must come from adults, the main burden of the work would clearly fall upon the children themselves. They seized upon the idea with obvious enthusiasm, and within a matter of days a committee consisting of four adults and four pupils had been elected to organise the work.

Parents' Circle

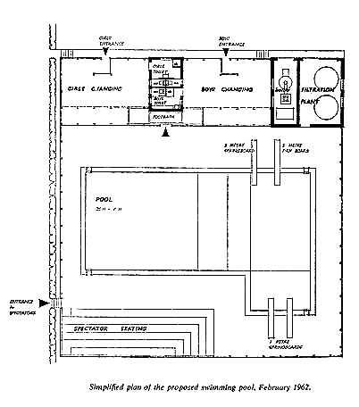
A professionally built pool, which would probably cost between £25,000 and £30,000, was out of the question; even a "do-it-yourself" one would run into several thousands of pounds, and the School's capital resources had been fully committed in the provision of new laboratories and other buildings. Children might, by their own effort, raise some of it, but certainly not the whole sum that would be needed. Everything would depend on the attitude of the parents to the scheme. Parent-teacher friendship and co-operation had been a feature of St Christopher for many years - in fact, the Parents' Circle is one of the oldest in the country, having been started in 1920. Shortly after the School Meeting already described, the Headmaster laid the plan before the parents; he told them that the "Cloisters" pool was no longer available for school use, and that the children were prepared to work hard to build a pool of their own - well over a hundred had already volunteered their labour during spare time in term and in a succession of work camps during the Easter holidays; he was also able to announce that Mr Barnes had offered his professional services as Architect, and Mr Stephen Harris his as Engineer. He envisaged a final cost of not less than £3,000 for the pool, including filtration plant and changing cubicles, and believed that they might hope to complete the job before the end of the Summer term 1962. Parents present at the meeting expressed their warm approval of the scheme, and a sum of £500 was contributed, or promised, before the meeting was adjourned.

The two people whose offers of help made the whole project possible - without whom, indeed, it would have been quite impossible - were the Architect and the Engineer. Mr Barnes, who has had professional responsibility for much of the recent building in the School, undertook the architectural planning of the site and of the changing rooms and building to house the boiler and filtration plant. Responsibility on the engineering side, for the design of the pool structure, the pipework and filter plant, and for their construction, was taken by a Chartered Civil Engineer, Stephen Harris, a former pupil and present parent of the School. It happened that in the previous year he had helped with the construction of a learners' pool, on a self-help basis, in a Cambridgeshire village primary school.

Continue to next page.


Back to start